安芸郡坂町横浜東1丁目
オール電化 シンプルで洗練されたデザイン
近隣商業施設徒歩圏内 横浜小学校近く
土地面積約48.95坪 大きな窓で採光良好
駐車スペース・お庭スペースゆったり確保 EVコンセント カードキー
カップボード フラット35S適合 複層ガラス 温水洗浄便座
浴室乾燥機 浴室1坪以上 IHクッキングヒーター シューズインクローク
-
ローンシミュレーションこの物件を購入した場合の、月々の支払い価格の一例です。借り入れを保証するものではございません。
- 返済期間
-
- 金利
-
- ボーナス時の増額(1回分)
-
- 借入金額:
-
- 頭金:
-

- 毎月の返済額:
(※元利均等方式 金利5.00%まで ※返済年数5~50年まで入力できます)
(※ボーナスは年2回で計算しています。1000万円まで入力できます)
(※物件購入時、その他諸費用が発生する場合がございます)
情報の見方担当者のコメント 原田ゆめか

- 用途地域:第1種住居
学区:横浜小学校 ・ 坂中学校
宅地造成工事規制区域
景観法による規制有
ポイント・特徴
物件概要
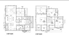
【新築一戸建】 物件番号:102002472 情報更新日:2026年03月02日 次回更新予定日:2026年03月16日所在地 広島県安芸郡坂町横浜東1丁目10- 交通 間取り/詳細 4LDK/ 建物面積(坪数) 107.50㎡(32.51坪) 価格 4,290万円 駐車場/月額料金 有/ 駐車場:2台可 土地の敷金/保証金 -/- 借地料/借地期間 -/- 土地権利 所有権 土地面積(坪数) 161.82㎡(48.95坪) 傾斜地部分面積 - 路地状敷地 - 私道負担面積/セットバック -/- 高圧線下面積 - 地目/地勢 -/- 接道状況 - 建ぺい率/容積率 60%/200% 用途地域 - 都市計画 - 種別/構造 新築一戸建/木造 階建 2階建 築年月(築年数) 2025年 4月 (新築) 総区画数/販売区画数 -/- 向き - 現況 完成済み その他の法令上の制限 - 取引態様/引渡時期 仲介/相談 建築確認番号 第R06認広建セ01124号 物件番号 102002472 取引条件の有効期限 2026年03月16日 設備条件 備考 ローン相談会
お客様のお仕事内容やご年収、現在の借入などにより金利は変化しますが、弊社では、
沢山の金融機関とかなり親しくさせて頂いており、お客様によりよい金融機関のご提案をさせて頂けます。
安心してご相談くださいませ。
お仕事のお忙しい方でも安心
弊社はアフターフォローアフターサービス不動産業界No.1を目指しています。
お客様に合わせて営業時間外でのご案内やご契約も元気にご対応中です!
お仕事のご都合で、「今はまだ、、、」と物件の購入を諦めていませんか?
弊社なら、お客様のご都合に合わせてご案内からご契約後までしっかりサポートいたします!
無料送迎サービス有
最寄り駅やご自宅までお車でお迎えに上がり、そのまま現地へのご案内も可能です!
駅から少し離れた物件や、今のお家から少し遠い物件でもご安心してご内覧頂けます!
スピード対応
お問合せ頂きましたら、迅速にご対応致します!!
本日見たい!が叶う物件もたくさんご用意しておりますので、
新築一戸建・中古一戸建・新築マンション・中古マンション・土地・収益物件など、
お気軽にお問い合わせくださいませ♪
お客様のご都合に合わせてご案内
時間がないから知りたい情報だけ聞きたい、というご要望にもお応え可能です♪
おおよその所要時間は下記をご参考ください
・現地/物件見学(約30分~)
・ご希望条件のご相談(約30分~)
・資金計画やローンのご相談(約30分~)
取扱会社 - アイスタイル株式会社
- 広島県広島市中区中町7番35号 和光中町ビル 9F
- TEL:082-240-9911
- 広島県知事 (4) 第9606号
- (公団)全国宅地建物取引業協会
(一社)賃貸不動産管理業協会
広島県中小企業経営革新支援事業 認定企業
※地図上に表示される物件の位置は付近住所に所在することを表すものであり、実際の物件所在地とは異なる場合がございます。
物件お問い合わせ






















