佐伯区五月が丘2丁目
価格
3,480
万円
種別
新築一戸建
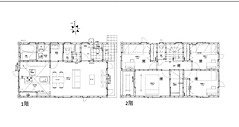
間取
4LDK
建物面積
99.77㎡
住所
広島県広島市佐伯区五月が丘2丁目4-
交通
五月が丘二丁目バス停
担当者のコメント
原田ゆめか
用途地域:第1種低層住居
学区:五月が丘小学校 ・ 五月が丘中学校
間取り