フローレンス田方ウイングテラス
価格
2,499
万円
種別
中古マンション
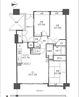
間取
3LDK
専有面積
72.70㎡
住所
広島県広島市西区田方1丁目7-19
交通
草津南駅
徒歩5分
担当者のコメント
加藤弘明
学区:古田小学校 ・ 古田中学校
用途地域:第一種住居駐車場:6,000~10,000円(空有 令和7年7月15日現在 敷地内機械式)駐輪場・バイク置場:無料(空有 令和7年7月15日現在)
間取り