佐伯区観音台1丁目
物件情報
周辺施設
佐伯区観音台1丁目 の物件概要
【売地】※地図上に表示される物件の位置は付近住所に所在することを表すものであり、実際の物件所在地とは異なる場合がございます。
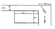
佐伯区観音台1丁目の販売区画情報
| 価格 | 建ぺい率/容積率 | 土地面積 | 坪数 | 詳細 | 検討リスト |
|---|---|---|---|---|---|
| 1,540万円 | 50%/ 100% | 226.84㎡ | 68.61坪 | 詳細を見る | 追加する |
| 1,770万円 | 50%/ 100% | 200.52㎡ | 60.65坪 | 詳細を見る | 追加する |
| 会員限定 | 会員限定/ 会員限定 | 会員限定 | 会員限定 | 詳細を見る | 追加する |
| 会員限定 | 会員限定/ 会員限定 | 会員限定 | 会員限定 | 詳細を見る | 追加する |
| 2,998万円 | 50%/ 100% | 112.53㎡ | 34.04坪 | 詳細を見る | 追加する |
| 3,498万円 | 60%/ 200% | 156.61㎡ | 47.37坪 | 詳細を見る | 追加する |
| 会員限定 | 会員限定/ 会員限定 | 会員限定 | 会員限定 | 詳細を見る | 追加する |















