中区江波東1丁目
物件情報
周辺施設
中区江波東1丁目 の物件概要
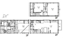
【中古一戸建】※地図上に表示される物件の位置は付近住所に所在することを表すものであり、実際の物件所在地とは異なる場合がございます。
広島市の不動産満載のアイスタイル株式会社TOP > (戸建(売買))地域から探す > 広島市中区 > 中区江波東1丁目
中区江波東1丁目
物件情報
周辺施設
中区江波東1丁目 の物件概要
【中古一戸建】※地図上に表示される物件の位置は付近住所に所在することを表すものであり、実際の物件所在地とは異なる場合がございます。

広島市中区以外の市区町村から探す