東区馬木8丁目
物件情報
周辺施設
東区馬木8丁目 の物件概要
【中古一戸建】| 所在地 | 広島県広島市東区馬木8丁目 | ||
|---|---|---|---|
| 交通 |
|
||
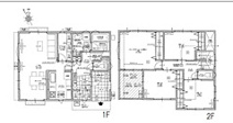
| 価格 | 1,150万円~2,480万円 | 築年月(築年数) | 1993年 9月 ( 築32年 ) |
| 建物面積/坪数 | -㎡~104.74㎡/0坪~31.68坪 | 土地面積/坪数 | 147.84㎡~1968.57㎡/44.72坪~595.49坪 |
| 種別/構造 | 中古一戸建 / 木造 | 地目 | 宅地 |
| 取扱会社 |
|
||
※地図上に表示される物件の位置は付近住所に所在することを表すものであり、実際の物件所在地とは異なる場合がございます。
東区馬木8丁目の販売物件情報















